Multi-Generational Living

Designing a home for multiple generations is about far more than adding space. It’s an orchestration of privacy, independence, and connection — all without compromising architectural integrity.

When composed with care, these homes do more than function beautifully — they transform how families live together.

private retreat of multi-generational house for generation 2 - parents

The Architecture of Togetherness

Multi-generational living demands strategic planning, architectural sensitivity, and long-term foresight.

Every decision carries emotional and functional weight. When resolved with clarity, the result is a home that evolves gracefully — supporting your family for decades.

We begin by understanding how families truly live:

How does the family retreat? How do they gather?

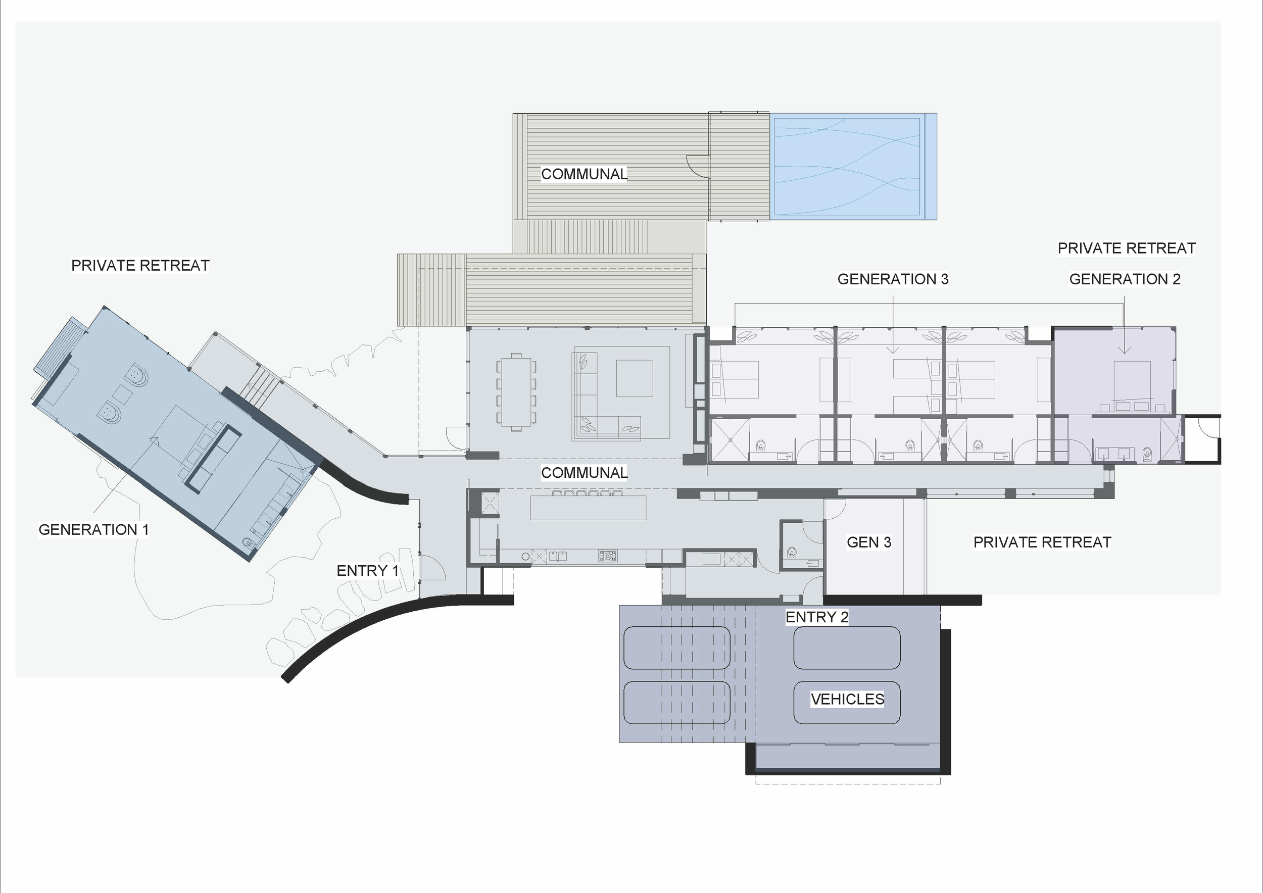
A balance between communal and private spaces defines the success of a multi-generational design. Shared areas — expansive kitchens, multiple living zones, outdoor entertaining — foster connection. Private retreats — master suites, secondary living spaces, kitchenettes, study nooks, and separate entries — ensure comfort, dignity, and independence.

How does the family evolve?

Flexibility is central. Spaces are planned to adapt — a playroom becomes a study, a guest suite transitions to a caregiver’s room. This foresight “future-proofs” the home, ensuring it remains relevant as dynamics shift.

How do we harmonise different rhythms?

Through acoustic and spatial intelligence — zoning, materials, and circulation are carefully orchestrated to manage sound and activity between generations. Even garage, driveway, and entry layouts reflect the unique daily rituals of each household member.

ground-floor-accessibility-living-generation-one-living-baysdie-saaj-design-architects

Our Role

Our role is to bring clarity to this complexity — translating needs, emotions, and patterns into architecture that feels effortless.

Each project is a unique response to its site, its occupants, and its future. There is no formulaic approach; only a deep engagement with how your family lives, thinks, and grows.

The result: a home that honours individuality, nurtures connection, and stands as a timeless expression of family life.

This is where experience matters. SAAJ Design specialises in bespoke homes that balance legacy and luxury.

If you are planning a multi-generational home and want to explore what is truly possible, we invite you to begin the conversation with us.

Every SAAJ Design project is tailored specifically to the family -the whole family – multigenerational living.